項目名稱:保利西山林語二期
項目地址:石家莊鹿泉
項目面積:170㎡
設計單位:金舍別墅裝飾總部店
首席設計師:武林慧
設計團隊:孫俊堯 馮雨奇
軟裝陳設:劉瀟文

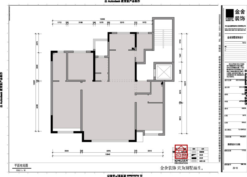
原始戶型圖

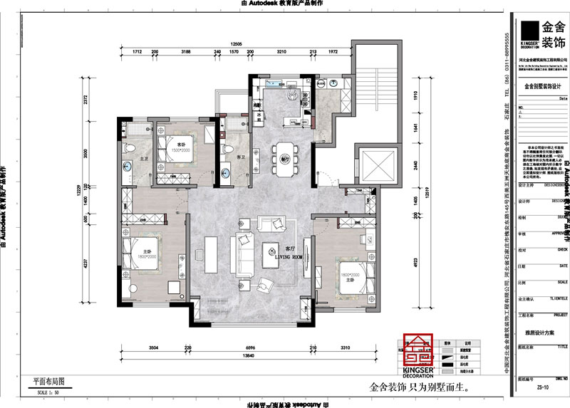
平面布置圖
戶型解析:入戶空間窄小 利用簡介線條和燈光勾勒出空間氛圍感
客廳空間拆除墻體,精致的家具陳設雕塑感極強,仿佛動態與靜態可隨時轉換。暖棕、素灰,亮白互相穿插相融,沙發、茶幾、邊椅圓潤邊角線敦厚,共同營造出一方自在閑適。空間由看似隨性卻富有條理性的線面鋪開,豐富的自然采光消融現代材質的冰冷。電視墻面轉換為往上延伸的懸空視覺效果,弱化原本較低的層高局限。空間形態達到輕柔平展,多元嶄新的面貌被逐一喚醒。
廚房空間利用不足,拆除原有墻體。改造成敞開式廚房,連接一側邊島,增加餐廳及廚房的互動性,也為原有利用不足的廚房增加小電器的臺面利用。
主臥室拆除原有飄窗,增加空間開闊度 。跟主衛相連之處隔出L型衣帽間,遮擋衛生間門的同時合理利用兩側收納。